2920 St Paul St

Verified

2920 St Paul St

  • Monthly Rent

    $1500 - $1500

  • Bedrooms

    0

  • Bathrooms

    1 - 1 ba

  • Square Feet

    Updating

2920 St Paul St Contacts Information

Address: 2920 St Paul St
City: Baltimore
Zip code: 21218
Phone: +1-667-213-6604

Pricing & Floor Plans

About 2920 St Paul St

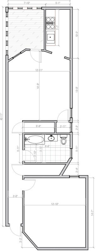
'Please NOTE*** The Unit is currently being renovated and will be available for move-in on August 1st. Please see the blueprint for details of the layout" Welcome to your dream home featured by HWood Living! We have newly renovated Studio's, 1 Bedroom & 2 bedroom apartments. These Units are perfectly located steps away from John's Hopkins University and a 5-minute walk from the charming historic Charles Village District as well as entertainment and restaurants in the area. These apartments are perfect for those who value quality, convenience, and accessibility. The bright and spacious living area provides a cozy relaxing space after a long day. The kitchen features granted countertops, and updated cabinets and is fully equipped with up-to-date modern appliances and plenty of storage space, perfect for those who love to cook. The spacious and naturally lit bedrooms have a large closet, providing plenty of room for all your belongings. Located in a bustling and vibrant neighborhood, this property is within walking distance of top-rated restaurants, cafes, and shops. The John's Hopkins University campus is also nearby, making it the perfect location for students, faculty, or anyone looking to enjoy Charles Village. With in-unit laundry and you'll have everything you need to live comfortably. Plus, the rent includes essential amenities such as WIFI, lawn care, and snow removal. You can choose to rent the apartment fully furnished or unfurnished, depending on your preference. Hwood Living's partnership with Blue Phoenix Property Management, one of the premier property managers in the area, will ensure maintenance requests are handled promptly and comprehensively. With high demand, this home won't be available for long, so don't miss out on securing this beautiful property and what you will soon call home. Contact us today to schedule a viewing! This property is also available for 2024, 2025, and 2026 School Years. - Student Housing *** - Under Renovation *** - Ready for August 1st Move-inn*** - Newly Renovated Studio's, 1 Bedroom & 2 bedroom apartments ***

2920 St Paul St Location Details

Now, 2920 St Paul St opens in the state of MD , and is on the street of 2920 St Paul St. You can also use the map below to be directed to come to 2920 St Paul St exactly. If you have any inquiries or want to have a quick answer, please make a call to this phone number: +1-667-213-6604 for messaging.

Write a Review

The whole of my review above is real, I ensure what I share is my own real experience. I have never gotten any payments or sponsor fee from the organization in order to post the unreal review. Once again, I correct that what I wrote is my true experience and willing to bear responsibility if violating the Terms & Conditions of AllInfoHome.com.

Three steps to share a great review:

  • 1. Retell your real experience of the organization's service as detailed as possible.
  • 2. The honest, objective review will be useful for both customers and the organization.
  • 3. Leaving feedback politely, not rude and constructive is appreciated.

Featured Photos of 2920 St Paul St.

Similar Businesses Nearby

HOHM
HOHM

3905 Bank St

Elms Fells Point
Elms Fells Point

2001 Aliceanna St

The James
The James

211 Saint Paul St

Prosper On Fayette
Prosper On Fayette

400 W Fayette St

The Courtland
The Courtland

415 Saint Paul Pl

The Darcy
The Darcy

1702 Light St

The Gunther
The Gunther

1211 S Conkling St

Camden Court
Camden Court

300 W Lombard St

Chesapeake Commons
Chesapeake Commons

601 N Eutaw St

Roland Ridge
Roland Ridge

4412 Laplata Ave

Washington House
Washington House

930 N Calvert St

Frequently Asked Questions Related to 2920 St Paul St

Of course, you can! We truly appreciate your distribution. Please send us all your home information such as photos, address, opening hours, home values, the link website or any details.

Great! If you want to submit any information around 2920 St Paul St like Nearby schools, Nearby Neighborhoods, Nearby Home Values, Nearby rentals,etc, don't hesitate to contact us via our email address on our Contact Us Page.We hope to get your email soon!

In the process of gathering the data from a variety of sources, it is so hard for us to make sure that all information is most correct. Please send us your information via our email on Contact Us page, we will consider and update after confirming exactly.

Yes, you can. Let's send us the newest pictures of 2920 St Paul St, we will see across and show it if suitable.